Analysis And Design of Seven Storey School Building
Table of Contents
The objective of this project is to design a Analysis and design of seven storey school building, With all calculations, Seismic Zone 4, adhering to relevant Indian Standard codes. The building’s structural design ensures safety, functionality, and cost-effectiveness under seismic and wind forces.
The structure is modeled using ETABS 2022 for analysis and design of beams, columns, slabs, and shear walls, while SAFE is utilized for foundation design. Load patterns including dead load, live load, seismic loads, and wind loads are considered based on IS 456:2000, IS 1893:2016, and SP 34 guidelines. The project emphasizes ductile detailing and seismic response analysis using the Response Spectrum in X and Y directions.
Design results demonstrate that the structural elements meet the safety and serviceability criteria. Recommendations for construction and practical insights are provided, ensuring compliance with modern building codes and standards.
OBJECTIVE
The main objective of the project is
- To Analyze and design a G+7 school building by using E-TABS.
- To understand the effect of seismic load on the building.
- To properly Detail various structural elements.
- To design a Foundation.
To Understand the various Indian Standards for the design of structure
GENERAL
The basic objective in structural analysis and design is to ensure that a structure is safe, stable, and capable of resisting the loads to which it will be subjected during its intended use. This includes considering the types and magnitudes of the loads that the structure will experience, as well as the materials and design methods that will be used to resist those loads.
In order to achieve this objective, structural engineers use a variety of tools and techniques, including computer software programs, to analyze and design structures in a way that meets the required safety standards and performance criteria. Structural analysis and design also consider other factors, such as the cost of materials and construction, the aesthetics of the structure, and the environmental impact of the design.
There are many classical methods to solve design problems, but these manual calculations are hectic and time-consuming but with time new software’s also comes into play which eases the analysis and designing process. Here in this project work, software like E-TABS, AUTO CAD, MS-EXCEL and SAFE has been used to design a 7-storey school building has been designed.
Different countries have their own structural design codes, these codes are important to become aware of local requirements or recommendations regarding correct practice. This report explores the different Indian Standard code books for the same.
Project Scope:
This project focuses on the complete structural design of the school building using advanced modeling and analysis tools. Key design aspects include:
- Structural elements: Beams, columns, slabs, and shear walls.
- Seismic resistance using ductile detailing.
- Response Spectrum analysis for dynamic load effects.
- Foundation design to support the structural loads effectively.
STAGES OF STRUCTURAL DESIGN

BUILDING DESCRIPTION
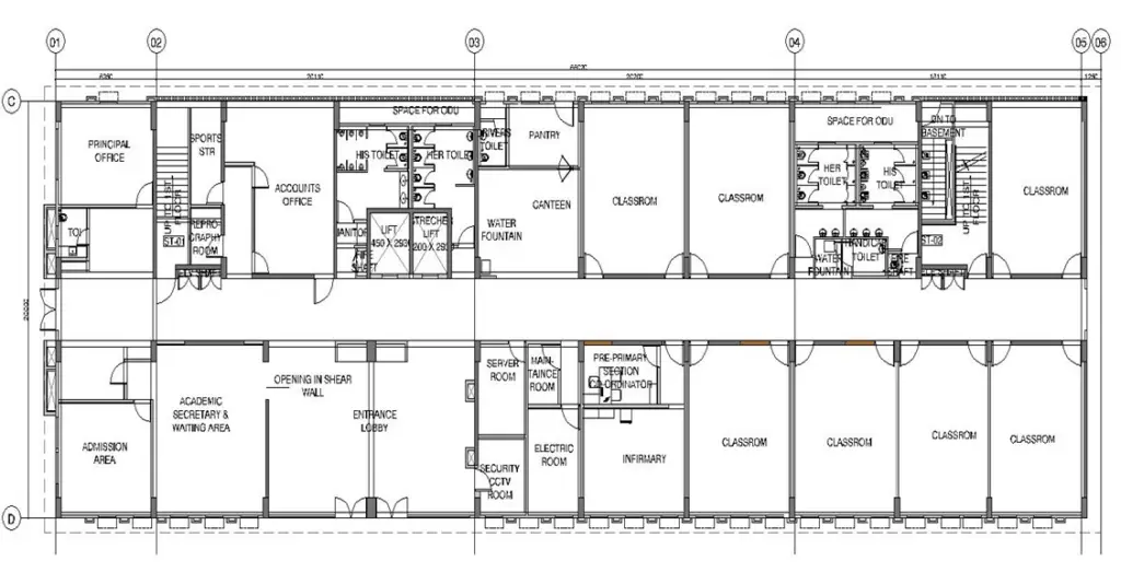
The project involves the design of a G+7 school building with an overhead tank (OHT). Seismic Zone 4. The building is designed to function as an educational facility, capable of accommodating classrooms, administrative spaces, and utility areas. Special attention has been given to structural safety, seismic resistance, and wind loading conditions.
Building Data
| TYPE | SITE | Tower Config. | Typical Floor to floor-to-floor Height (m) | TOTAL HEIGHT |
| SCHOOL | SELF DESIGN | G+7 | 3.7 | 29.6 |
Dimensions of the Building:
- Total Height: 34.7 meters (including OHT).
- Total Length: 64.613 meters.
- Width: 19 meters.
- Area: – 1227.65 m2
Structural Elements:
- Beams:
- Size: 500 mm x 600 mm.
- Material: M30 concrete.
- Columns:
- Size: 800 mm x 1200 mm.
- Material: M40 concrete.
- Slabs:
- Thickness: 150 mm.
- Material: M30 concrete.
- Shear Wall (Lift Area):
- Thickness: 240 mm.
- Width: 3500 mm.
Brief description of the proposed design
| Utility of Building | School Building |
| Structure Type | R.C Frame Structure (S.M.R.F) |
| Types of walls | Brick Masonry |
| No. of Stories | G+7 |
| Floor Height | 3.7 m |
| Types of Slabs | One way and Two-way Slabs |
| Types of staircases | Dog legged |
| Foundation | Isolated Square Foundation, Combined Foundation |
| Design Concept Methodology | Limit State Design (IS: 456:2000) |
| Concrete Grade Used | M30, M40 |
| Steel Grade Used | Fe550 |
| Dead Load | IS: 875:1987 (Part1) |
| Live Load | IS: 875:1987(Part 2) |
| Seismic Load Calculation | IS 1893: 2016 using Response Spectrum Analysis |
| Preliminary Design and Detailing | IS 456: 2000 IS 13920: 2016 |



LOAD CALCULATION
A characteristic load is defined as that value of load that has a 95% probability of not being exceeded during the life of the structure. The characteristic value of a particular load can be calculated theoretically. However, research for determining actual loading on structures has not yielded adequate data to enable us to compute theoretical values of variations for arriving at the actual loading on a structure.
When accessing the strength of a structure or structural member for the limit state of collapse, the value s of partial safety of factor, γm should be taken as 1.5 For concrete and 1.15 for steel.
A higher value of partial safety factor (γmc = 1.5) for concrete has been adopted because there are greater chances of variation of the strength of concrete due to improper compaction, inadequate curing, improper batching and mixing, and variations in properties of ingredients.
The chances of variations in the strength of reinforcement are known to be small and hence a lower value (γms = 1.15) has been adopted. It is also to be noted that γm values are already incorporated in the equations and tables given in IS 456: 2000. Similarly, for loads also the partial factor of safety as per IS 456:2000 (Table 18) are given as Follows
Design Loads (except earthquake loads)
| LOAD COMBINATIONS | LIMIT STATE OF COLLAPSE | LIMIT STATE OF SERVICEABILITY | ||||
| DL | IL | WL/EL | DL | IL | WL/EL | |
| DL+IL | 1.5 | 1.5 | 1.0 | 1.0 | 1.0 | – |
| DL+WL /EL | 1.5 or 0.9 | – | 1.5 | 1.0 | – | 1.0 |
| DL+IL+WL/EL | 1.2 | 1.2 | 1.2 | 1.0 | 0.8 | 0.8 |
DESIGN AIDS
Code Books and Standards
Design Loads (other than earthquake loads)
| IS Codes | Description |
| IS 875 (Part 1): 1987 | Dead Loads – Unit Weight of Building Material and Stored Material |
| IS 875 (Part 2): 1987 | Imposed Loads |
| IS 875 (Part 3): 2015 | Wind Loads |
| IS 875 (Part 5): 1987 | Special Loads and combinations |
Design code for Earthquake Resistance
| IS Codes | Description |
| IS 1893: 2016 | Criteria for Earthquake Resistance Design of Structure |
| IS 4326: 2013 | Earthquake Resistant Design and Construction of Buildings – Code of Practice |
| IS 13920: 2016 | Ductile Detailing of Reinforced Concrete Structures subjected to Seismic Forces – Code of Practice |
| IS 16700: 2023 | Criteria for Structural Safety of Tall Buildings |
LOADING PARAMETERS
DEAD LOAD
According to Hibbeler R.C. (2012), Dead load consists of the weights of the various structural members and the weights of any objects that are permanently attached to the structure. Hence, for a building, the dead loads include the weight of the columns, beams, and girders, the floor slab, roofing, walls, windows, plumbing, electrical fixtures, and other miscellaneous attachments. According to IS 456:2000 (Cl. 19.2), dead loads shall be calculated on the basis of unit weights which shall be established taking into consideration the materials specified for construction. Alternatively, the dead loads may be calculated on the basis of unit weights of materials given in IS 875(Part 1)- 1987.
As per IS 875 (Part 1)-1987, the unit weights of various dead loads considered in the presented design are as follows:
Self-Weight
Self-weight as per IS-875 (Part-1) 1987 of the structural members will be considered on the basis of the following criteria.
| Table 2.4 Density of concrete | 25 kN/cum |
| Density of Light weight block walls | 8 kN/cum |
| Density of soil filling | 20 kN/cum |
| Density of steel | 78.5 kN/cum |
| Density of plain concrete/screed | 24 kN/cum |
| Density of Plaster | 20 kN/cum |
| Density of Light weight material | 10 kN/cum |
Imposed Loads
Imposed Load as per IS-875 (Part-2) 1987
| Staircases | 4.0 kN/sqm |
| Toilets | 2.0 kN/sqm |
| Terrace Live Load (Accessible) | 1.5 kN/sqm |
| Terrace Live Load (Inaccessible) | 0.75 kN/sqm |
| Lift | 4.0 kN/sqm |
| corridor | 4 |
Apart from the self-weight and imposed loads, other dead loads due to stationary building elements are also mentioned hereunder, which arise due to floor finishes, walls, services, false ceilings, filling in sunken areas etc. (super-imposed dead loads).




Super-Imposed Dead Loads (SIDL)
- Class Room
- Floor Finish = 50 mm
- Plaster = 15 mm
- Flooring Density = 24 kN/cum
- Plaster Density = 20 kN/cum
- Total Load = (0.05*24) + (0.015*20) = 1.5 kN/sqm
- Toilets
- Floor Finish = 50 mm
- Filling (PCC) = 24 mm
- Plaster = 15 mm
- Flooring Density = 24 kN/cum
- PCC Density = 24 kN/cum
- Total Load = (0.05*24) + (0.06*24) = 2.4 kN/sqm


Wall Loads
Load due to brick wall (230 mm) = 0.23*20*(3.7-0.6) = 14.3 KN/m
Load due to brick wall (150 mm) = 0.115*20*(3.7-0.6) = 9.3 KN/m
Load due to parapet wall of 1 m height = 1*0.23*20 = 4KN/m


Wind loads on Building
Building and their components are to be designed to withstand the code-specified wind loads. Calculating wind loads is important in design of wind force-resisting system. Structural members, components, and cladding shall be designed against wind-induced shear, sliding, overturning, and uplift actions.
In effect of the above-mentioned issues, structural design shall be made in such a way that wind forces shall not create discomfort to occupants of the building.
According to IS: 875 (Part-3):2015, wind loads on structures are calculated using the basic wind speed (Vb) and the importance factor (I) for the location where the structure is to be built. The basic wind speed is a measure of the wind speed at a reference height above the ground, and it is used to determine the wind loads that a structure will be subjected to.
The importance factor (I) is a factor that accounts for the importance of the structure and the consequences of failure, and it is used to increase or decrease the wind loads based on the function and significance of the structure. The wind loads are then used to design the structure to resist the wind loads in accordance with the provisions of the standard.
Wind loads will be calculated in accordance with wind load code IS 875: Part 3 corresponding to a basic wind velocity of 50 m/sec and Terrain Category 3.
Wind Load Calculation IS 875 Part 3
| Design Wind Speed, Vz | Vb*K1*K2*K3 |
| Wind Speed, Vb | 50 m/sec |
| K1 (Risk Coefficient) | 1.0 (For 50 years means probable design life) as per Cl 6.3.1 Table-1 |
| Terrain Category | Category-3 |
| K2 | Varies with height as per cl. 6.3.3.2 Table-2 |
| K3 (Topography Factor) | 1.0 as per cl 6.3.3 |
| K4 (Importance Factor) | 1.0 as per cl. 6.3.4 |
| Design Wind Pressure (Pz) | 0.6*Vz*Vz as per cl 7.2 |
Force Along Wind Part-2
Dynamic Wind loads:
Since the time period of the building is more than 1 second, dynamic wind analysis shall be performed in accordance with Indian codes. Dynamic loads have been calculated based on wind code IS 875- Part 3 recommendations. Dynamic load factors for along wind and crosswind have been calculated and applied at floor diaphragms incorporating Gust Factor as per IS 875:2015(Part-3).

EARTHQUAKE LOAD
Load refers to the lateral forces that act on a structure due to the ground shaking caused by an earthquake. Earthquake loads are typically characterized by their intensity, frequency, and duration, and can have significant effects on the strength and stability of a structure.
It is important to consider earthquake loads in the design of a structure, particularly in areas that are prone to earthquakes, as a structure that is not adequately designed to resist earthquake loads may be at risk of collapse or significant damage. In order to design a structure to resist earthquake loads, structural engineers may use a variety of tools and techniques, including computer modeling and analysis, to determine the expected earthquake loads and the appropriate design measures to resist those loads.
The total vibration caused by an earthquake may be resolved into three mutually perpendicular directions, usually taken as vertical and two horizontal directions. The movement in a vertical direction does not cause forces in the superstructure to any significant extent. However the horizontal movement of the building at the time of the earthquake is to be considered while designing. It shall be computed as accordance with IS 1893.
LOAD COMBINATION
Basic Load
DL = Dead Load
DL Constitutes the following static loads.
- Self-weight – As Actual
- Wall Load – KN/m
- Floor Finish (FF)
- Sunken Load (Sunk)
- Filling, Water bodies (Filling)
- Water Tank, Machine Room, Brick Coba (WT, MR, etc.)
LL – Live Load
LL constitutes following
- LL3 = Live Load up to 3KN/m2
- LL5 = Live Load above 3KN/m2 which includes
- EQX = Static EQ Load in X direction with “User Defined” Time Period
- EQY = Static EQ Load in Y direction with “User Defined” Time Period
- RSX = Spectrum Load in X-direction
- RSY = Spectrum Load in Y-direction
- RSZ = Spectrum Load in Z-direction
- WINDX = Wind Force in X-direct
- WINDY = Wind Force in Y-direction
Various load combinations considered are
Service Load Combinations
- DL ± EQX
- DL ± EQY
- DL + 0.8LL ± 0.8EQX
- DL + 0.8LL ± 0.8EQY
- DL ± WINDX
- DL ± WINDY
- DL + 0.8LL ± 0.8WINDX
- DL + 0.8LL ± 0.8WINDY
Response Spectrum Analysis
- 1.5 DL ± 1.5 SPECX
- 1.5 DL ± 1.5 SPECY
- 0.9 DL ± 1.5 SPECX
- 0.9 DL ± 1.5 SPECY
- 1.2 DL + 1.2 LL3 + 1.2 LL5 ± 1.2 SPECX
- 1.2 DL + 1.2 LL3 + 1.2 LL5 ± 1.2 SPECY
- 1.5 DL ± 1.5 (SPECX ± 0.3 SPECZ)
- 1.5 DL ± 1.5 (SPECY ± 0.3 SPECZ)
- 0.9 DL ± 1.5 (SPECX ± 0.3 SPECZ)
- 0.9 DL ± 1.5 (SPECY ± 0.3 SPECZ)
- 1.2 DL + 1.2 LL3 + 1.2 LL5 ± 1.2 (SPECX ± 0.3 SPECZ)
- 1.2 DL + 1.2LL3 + 1.2 LL5 ± 1.2 (SPECY±0.3 SPECZ)
- 1.5 DL ± 1.5 (SPECZ ± 0.3 SPECX)
- 1.5 DL ± 1.5 (SPECZ ± 0.3 SPECY)
- 0.9 DL ± 1.5 (SPECZ ± 0.3 SPECX)
- 0.9 DL ± 1.5 (SPECZ ± 0.3 SPECY)
- 1.2 DL + 1.2 LL3 + 1.2 LL5 ± 1.2 (SPECZ ± 0.3 SPECX)
- 1.2 DL + 1.2LL3 + 1.2 LL5 ± 1.2 (SPECZ±0.3 SPECY)
Static Analysis
- 1.5 DL ± 1.5 EQX
- 1.5 DL ± 1.5 EQY
- 0.9 DL ± 1.5 EQX
- 0.9 DL ± 1.5 EQY
- 1.2 DL + 1.2LL3 + 1.2LL5 ± 1.2 EQX
- 1.2 DL + 1.2LL3 + 1.2LL5 ± 1.2 EQY
Wind Analysis
- 1.5 DL ± 1.5 WINDX
- 1.5 DL ± 1.5 WINDY
- 0.9 DL ± 1.5 WINDX
- 0.9 DL ± 1.5 WINDY
- 1.2 DL + 1.2 LL3 + 1.2LL5 ± 1.2 WINDX
- 1.2 DL + 1.2 LL3 + 1.2LL5 ±1.2 WINDY
TIME PERIOD CALCULATION
The natural period of building, for analysis purposes is calculated using the expression given in clause 7.6.2 of IS: 1893-2016, as below:
For School Building,
Time Period, Tx (Along X Direction) = (0.09 * h)/ Sqrt (dx)=0.338 second
Time Period, Tz (Along Z Direction) (0.09 * h)/ Sqrt (dy)= 0.7.6 second
Time period has been calculated as per Clause 7.6.2 (a) of IS: 1893 (Part I: 2016)
As per Indian code IS 1893, lies in Zone IV. Hence Zone Factor Z = 0.24
Importance Factor I will be considered as 1.5
The weighted average of corrected N-value of soil upto 1.5XWidth of foundation depth below the foundation level is greater than 30 for the tower foundations. Hence as per Table 4, IS-1893:2016 Soil Type is considered as Type 2 (Medium Soil)
Response Reduction Factor, R = 5.0
MODELLING
Structural Plan
A structural plan is a detailed technical drawing that shows the structural design of a construction project. It typically includes information about the size and location of the building’s foundation, walls, floors, and roof, as well as details about the materials that will be used in these structural elements.
A structural plan may also include information about the load-bearing capacity of the various structural elements, as well as any special requirements or considerations for the design. A structural plan is primarily concerned with the load carrying members, size of members and material used in a building. It is based on the information provided by the AutoCAD drawings. The following steps are to be followed for the analysis of structure in E-tabs
STEP 1: Placement of columns and grids according to the plan.

STEP 2: Provision for plate thickness and sectional dimensions are provided under the define tab, then from the section properties tab the various frame, shell properties are given. Material properties are also defined from define tab. Required material to be used are added.

STEP 3: Under assign tab different load types are defined which includes dead load, live load and earthquake load then load combinations are made under the define tab then load case definitions. The various load combination which are already explained in the load combination section are added.

STEP 4: After the properties are defines the model is completed floor wise according to the framing plan of each floor then after complete model is made then by using analysis tab, the structure is analyzed. The reaction results obtained are used for the further design of the structural components.
Details of Etabs Model:
This section presents the details of Etabs Model and Analysis results.
After the properties are defines the model is completed floor wise according to the framing plan of each floor then after complete model is made then by using analysis tab, the structure is analyzed. The reaction results obtained are used for the further design of the structural components.
Etabs Geometry

Fig: 3.4- Etabs 3D Model of School Building

STEP 5: Base shear check in E-tabs is performed to verify that the structure is capable of resisting the lateral forces generated by earthquakes, winds, or other lateral loads. The base shear check is usually performed using load combinations specified in the relevant design codes and standards. The following steps are involved in performing a base shear check in Etabs:
The following steps are involved in performing a base shear check in Etabs:
- Run the analysis: Perform a static linear or non-linear analysis to determine the lateral forces acting on the structure.
- Review the results: Review the results of the analysis, including the base shear, drift, and story shear diagrams.
- Compare with code requirements: Compare the calculated base shear with the code- specified maximum base shear for the structure. The base shear should be less than or equal to the maximum specified base shear.
- Verify the design of critical elements: Verify that the design of critical elements such as beams, columns, and braces is adequate to resist the calculated base shear.
- Repeat the analysis if necessary: If the calculated base shear is greater than the code- specified maximum, revise the model, re-run the analysis, and repeat the checks until the base shear is within the acceptable limits.
Story Shear
Story Response Plot in X-Direction – EQX

Story Response Plot in Y-Direction – EQY

Story Response Plot in X-Direction – SPEC-X

Story Response Plot in Y-Direction – SPEC-Y

DESIGN OF STRUCTURAL MEMBER
Design of Slabs
The design of a slab using the Indian Standard code (IS) involves the following steps:
1. Determine the purpose and type of slab.
2. Establish the loads on the slab. This includes the dead load (weight of the slab itself, any finishes, and permanent fixtures), live load (variable loads such as people and furniture), and any imposed loads (such as wind or earthquakes).
3. Determine the size and spacing of the slab’s reinforcing steel, based on the loads and the size and spacing of the slab’s support beams.
4. Calculate the thickness of the slab using the established loads, the size and spacing of the reinforcing steel, and the strength of the slab’s concrete and reinforcing steel.
5. Detailing of the slab includes the placement of the reinforcing steel and any other elements (such as expansion joints or drainage channels) that are required for the slab’s proper function.
It is important to note that the design of a slab using the IS code will depend on the specific requirements of the structure, as well as local building codes and site-specific conditions.
It is recommended to consult with a structural engineer or other qualified professional to ensure that the slab is designed and constructed safely and effectively.
In this project 11 types of slabs are defined as slab S1 to S10 in which are two-way slabs Slab 1 have been designed manually for the reference of calculation and slab S2 to S10 has been designed using MS-Excel.
| Material and section property for design of slab |
| PROPERTY | VALUE |
| CONCRETE GRADE | M30 |
| STEEL GRADE | Fe500 |
| CLEAR COVER | 20 mm |
| THICKNESS OF SLAB | 150 mm |

Manual calculation for slab panel-1 for the reference of calculation
Slab panel (S1) – Two-way slab
: DIMENSIONS
Longer span (ly) = 8.2 Shorter span (lx) = 5.7
Fck= 30 MPa
Fy= 500 MPa
Clear cover = 20 mm
Dia = 12 mm
Slab is one end edge continuous
Step 1 Check for one way slab or two way slab
Ly/Lx = 8.2/5.7 = 1.44 which is less than 2 that mean it isa two way slab
Step 2 Determine effective depth (d)
d= shorter span/ basic value * modification factor
d= 5700/(26*1.3) = 168.63mm
D = d + clear cover + dia/2 = 168+20 + 12/2 = 194 mm
Step 3 Effective span
Leff = clear span + effective depth
Or
Centre to centre distance
Take whichever is minimum.
Effective span for shorter span (Leff x) = 5.7+0.169= 5.869 m
Effective span for longer span (Leff y ) = 8.7+0.169 =8.869 m
Step 4 Design Load (Wu)
Self weight of slab = D*unit weight of rcc* 1 m length
= 0.194 *25 *1 = 4.85KN/m
Live Load = 3*1 = 3KN/m
Floor Finishes = 1.5 KN/m
Total Load = 4.85+3+1.5 = 9.35KN/m
Factored design load (Wu) = 9.35 *1.5 = 14.02 KN/m (Load factor = 1.5)
Moment coefficients (IS 456:2000)
| -ve moment at the continuous edge | Short span coefficient (αx) | Long span coefficient (αy) |
| +ve moment at mid-span | 0.0586 | 0.047 |
| +ve moment at mid span | 0.044 | 0.035 |
Step 5 Design Moment and Shear Force
Mx= αx*Wu*leffx2
My= αy*Wu*leffy2
Mx (+)= 0.044*14.02*5.8692=21 KNm
Mx(-)=0.0586*14.02*5.8692=28.3 KNm
My(+)= 0.035*14.02*8.8692=38.59 KNm
My(-) = 0.047*14.02*8.8692=51.83 KNm
Take maximum moment for calculation of dreq and area of steel
Max. Shear force = 12.75*4.634/2=29.54 KN
Step 6 Minimum depth required
dreq = 98.70 mm which is less than 134mm. So, adopt d= 134mm
Step 7 Design for main reinforcement
Along shorter span in X- direction (Middle strip)
Width of middle strip = ¾*ly=¾*8.869=6.65 m
Mux= 0.87*Fy*Ast*d [1-(Ast*Fy/b*d*Fck)]
From above equation we get
Ast = 301.69 mm2
Using 10 mm bar , Aφ= π*82/4=58.3mm2
Spacing = 1000*Aφ/Ast= 177.93mm
Max Spacing = minimum of (3d=400mm or 300mm) = 300mm
177.93 mm < 300 mm
Hence OK
Taking spacing = 170 mm
Ast min = 0.12 *b*D/1000= 192 mm2
Ast provided = 1000*50.3/170 = 295.88 mm2>192mm2
Hence OK
Provide 8mm spacing centre to centre at a middle strip of 4.0755 m
Along longer span in y direction (middle strip)
Middle strip = ¾*lx= ¾*5.869=4.40 m
Muy= 0.87*Fy*Ast*d [1-(Ast*Fy/b*d*Fck)]
From above equation we get
Ast =312.67 mm2
Using 8 mm bar, Aφ= 50.3 mm2
Spacing = 1000*Aφ/Ast= 160.87 mm
Max Spacing = minimum of (3d=400mm or 300mm) = 300mm >160.87 mm.
Hence OK
Provide 8mm spacing centre to centre at a middle strip of 3.4755 m
Step 7 Check for shear
Nominal shear stress (Zv) = Vu/b*d
= 39.95*10^3/1000*134=0.22N/mm2
Pt= 100*Ast/b*d= 0.220 %
Zc= 0.356 N/mm2 (From IS 456:2000 Table 19)
Zc max = 4 N/mm2 (From IS 456:2000 Table 20)
K= 1.3 for 150 mm thick slab
K*Zc= 0.4628> Zc.
Hence, no need of shear reinforcement.
Step 8 Check for deflection
Pt= 0.22%
Fs = 0.58 Fy * Ast required/ Ast provided = 290
Modification factor = 1.35 (From IS 456:200 Fig 4)
(l/d) max = 26*1.35 = 35.1
(l/d) provided =4.634/.134= 34.58
(l/d) provided <(l/d) max
Hence OK.
Step 9 Torsional R/F at corner
Mesh size = lx/5= 5869/5=1173.8 say 1175mm
Area of torsional reinforcement = ¾*295.88= 221.91 mm2
Aφ=50.3 mm2
Spacing = 1000*50.3/221.91=226.66 mm
Take 220
Provide 10mm mesh of bars @100mm c/c in a mesh
Design of Column

Collumn Layout
| PROPERTY | VALUE |
| GRADE OF CONCRETE (fck) | M40 |
| GRADE OF STEEL | Fe500 |
| DIMENSIONS | 700×1000 mm |
| CLEAR COVER | 40 mm |
From Storey 1 column C2 Taken for manual designing
Width of Column=700mm Depth of column= 1000mm
Pu= 820.4 KN Mu2= 31KNm Mu3=80.27KNm L= 3.0 m
Fck = 40MPa Fy= 500MPa
DESIGN CHECK
- Check for axial stress
Highest factored axial force= 820.4 KN
Factored Max axial stress = 820.4*1000/300*450
=6.077 MPa <0.4 Fck i.e,16 MPa
(Cl 7.1 IS 13920:2016)
Hence design as a column member.
- Check for member.
Width of column =700mm≥ 300 Hence OK (Cl 7.1.1IS 13920:2016)
D= 450 mm
B/D=700/1000=0.7>0.4
Hence OK (Cl 7.1.2 IS 13920:2016)
Span L = 3700 mm
Slenderness Ratio = span/lateral dimension=3700/1000=3.7<12
Thhis means that it is a short column.
- Check for limiting longitudinal R/F
Minimum R/F = 0.8% of b*D
= 5600 mm2
Max R/F= 4% of b*D
= 2800mm2
- Design for earthquake in X direction
Pu=820.4KN
Mu2= 31 KNm
Pu/FckbD= 820.4*1000/40*700*1000= 0.029
d’= 30 +10+25/2= 52.5
Mu2/fckbD2= 104.86*106/30*700*10002= 0.0049
d’/D=52.5/450=0.116
From Chart 48 of SP 16 we get p/fck=0.04
- Design of earthquake in y direction
Pu= 820.4 KN
Mu3= 80.87 KNm
Pu/FckbD= 0.34
Mu3/Fckb D2=0.013
From chart 48 of SP 16 , we get p/Fck=0
Take larger p/Fck i.e 0.04
Therefore, the value of p = 0.5%
As= 0.5*1000*1000 = 5000mm2
The above value is less than minimum reinforcement of column hence provide
As = 9600 mm2
Hence provide 24 number 25 mm diameter bars and 6 number of 20 mm bars The provided reinforcement is less than maximum area of steel.
Hence OK

Design of transverse reinforcement
According to Clause 7.4.2 IS 13920 2016.
• Diameter of bar should not be less than 8 mm when diameter of main reinforcement is less than 32 mm
• Maximum spacing of parallel legs shall be 300 mm C/C
• Closed links shall have 135o hook ends with an extension of 6 times its diameter but not less than 65 mm at each end, which are embedded in the confined core of column.
• Spacing of lateral ties should not be more than half the least lateral dimension. Let us provide 10 mm lateral ties.
Spacing = 175 mm < 200 mm Hence OK
Provide 10 mm diameter bars at 175 mm C/C.
STEP 5: Confining reinforcement
Special confining reinforcement should be provided over a length lO from each joint face, towards mid height. The length l0 should not be less than
• Larger lateral dimension of member = 1000 mm
• One-sixth of clear span = 4500/6 = 750 mm
• 450 mm
Therefore, lO = 1200 mm
Area of confining reinforcement should be greater than

Using confining reinforcement bars to be of 10 mm in diameter, Ash = 78.5mm2
Diameter of core Dk = 700 – 2×40 + 2×10 = 640 mm
Dk = 1000 – 2×40 + 2×10 = 940 mm
Area of core Ak =940×640=601600mm2 Gross area Ag = 400×1400 =1200000 mm2
H= 940/2 = 470
The Values from manual calculation and reinforcement value from E-tabs is nearly same so providing reinforcement value from E-tabs only
Minimum spacing is given by
• Minimum dimension of column=1000 mm
• 6 times diameter of smallest longitudinal reinforcement bars = 6×20=120 mm
• 100 mm
Hence provide confining links of 10 mm diameter at 65 mm C/C at a distance of 500 mm from each joint end
DESIGN OF BEAM


Beam chosen B1 from Floor 1 Etabs Beam no B117
Dimension of Beam = 0.4*0.6 m
Length of beam = 4438
Fy=500 MPa
Fck= 40MPa
Check for Axial Stress
Factored axial force = 0KN
Factored axial stress= 0 MPa< 0.08Fck=2.4 MPa. {Cl 6.1 IS 13920:2016}
Hence OK
Check for member size.
Width of beam, B=200 mm =200 mm {Cl 6.1.2 IS 13920:2016}
D=450mm
B/D=200/450=0.44 >0.3 Hence OK {Cl 6.1.1 IS 13920:2016}
L/D= 4438/450=9.86 >4 Hence OK {Cl 6.1.3 IS 13920:2016}
Check for Limiting Longitudinal R/F
Clear cover=30mm, Stirrup dia=8mm
d= 450-30-8-20-20/2= 382 mm
Minimum R/F = 0.24 sqrFck/Fy= 0.24 Sqr40/500= 0.30%
i.e 0.30*200*382/100= 229.2 mm2 {Cl 6.2.1(b) IS 13920:2016}
Max R/F is 2.5%= 2.5*200*382/100= 1910 mm2 {Cl 6.2.2 IS 13920:2016}
Design for hogging Moment
Mu= 48.7KNm
Mu/bd2= 48.7*106/200*3822=1.67
From Table 56 of SP 16 we get
d’/d=68/382= 0.17
Ast at top =1.135%1.
= 1.135*200*382/100= 867.14 mm2
This is greater than minimum R/F(229.2) and less than Maximum R/F(1910).
Asc at bottom is 0.003%, but Asc must be atleast 50% of Ast, Hence revise to 1.135/2 =0.5675% {Cl 6.2.3IS 13920:2016}
Hence Asc at bottom = 0.5675*200*382/100=433.57 mm2
Design for Sagging Moment
Mu=27.091 KNm
The beam is designed as T beam.
The limiting capacity of T- beam assuming xu <Df and xu < xumax.
Mu= 0.87Fy*Ast*d(1- Ast*Fy/bf*d*Fck)
Df= depth of flange = 125mm
xu= depth of neutral axis
xumax. = limiting value of neutral axis
xumax. =0.46*d=0.48*382= 175.72 mm says 176 mm
bw= width of rib = 200 mm
bf= effective width of flange
= Lo/6 +bw + 6Df = 1467.77 mm
By solving equation, Mu= 0.87Fy*Ast*d (1- Ast*Fy/bf*d*Fck)
Ast at bottom = 433.57 mm2
It is required to check design assumption before finalizing the reinforcement.
xu= 0.87Fy*Ast/0.36Fck*bf
= 3.77 mm
xu< Df , xu< xumax . Hence OK
Asc at top not required, But Asc must be at least 50% of Asc hence revise to 183.5/2= 91.75 mm2 {Cl 6.2.3IS 13920:2016}
Required Reinforcement
Top reinforcement required is larger of 867mm2 and 433.57mm2. Here provide 867 mm2.
Bottom Reinforcement required is larger of 433.57 mm2 and 183 mm2. Here provide 433.57 mm2
Summary of reinforcement for beam
| Beam | Longitudinal Reinforcement | ||
| Left End | Center End | Right End | |
| Top R/F | 3-20φstraight+ 4-16 φ extra Steel provided | 2-16 φ straight Steel provided | 3-20φstraight + 4-40φ extra |
| Bottom R/F | 4-16 φstraight +3-16 φ extra Steel | 4-16 φ straight Steel provided i.e 0.52% | 4-16φstraight +(3-16 φextra ) mm2 |
Design for shear
The required capacity of shear reinforcement at the left end, right end and middle portion of the beam are 76.93KN,47.0096KN and 74.2637KN.
Therefore, Vus/d’=76.93/68= 1.13
From Table 62 of SP 16
Considering 6mm φ, Spacing= 100mm
Provide 100 mm at right and left end of beam.
At middle, Vus/d’=47.0096/68=0.7
From Table 62 of SP 16
Considering 6mm φ, Spacing= 120mm
As per CL 6.3.5.2 of IS 13920 :2016 the spacing of stirrup in middle portion shall not exceeds d/2=382/2=191 mm
Provide 120 mm at right and left end of beam.
Minimum Reinforcement (Cl 26.5.1.6-IS456:2000)
Sv=[Latex] frac{Asv0.87fy}{04*350} [/Latex]=257mm.>0.75d(210mm)
As per Cl 6.3.5 IS13920:2016,Spacing of links over a length of 2d at either end of a beam shall not exceed
d/4=95.5mm.
6×16=96mm
100mm.
Hence, provide @90mm c/c @2-legged stirrups from 2d length left and right corner.
Design of Staircase
Staircase is designed as a dogged leg staircase; landing slab is supported on sides.
Proportioning of various dimensions of staircase
Available width of staircase=3.3m
Considering 2 flights of dogged staircase, let us assume width of each flight as 1.5m
Space between two flights= 3.3- 2*1.5= 0.3 m
Floor to floor height = 3.7 m
As there will be two flights, each flight will have height of 3.7/2= 1.85 m
Assume height of riser 150 mm as it is residential building.
Number of risers = 1500/150=10
Number of treads required = Number of riser -1 = 9
Let width of each tread = 266mm
Total going = 266 *8 = 2394 mm say 2400 mm
Total Length available = 5400m
Width of each landing = (5.4-2.4)/2= 1.5m
Staircase Detail Elevation Plane Show in Annexure 1
Effective span of flight= Centre to centre distance of walls
=5400+230*.5+23*.5=5630mm
Thickness of waist slab = 1/20 of Effective span= 5630/20=281.5mm
Let us take, d=280mm
D= 280+25=305mm
Loads
- Waist slab
Weight of waist slab in plan (per m width of flight) = D[Latex] sqrt{1+R^2/2T} [/Latex]*25= 8.525kN/m
Weight of steps (per m width of flight) = 25RT/ 2T= 1.875KN/m
Total dead load = 8.525+1.875= 10.4 KN/m
Live Load = 3KN/m per width of staircase
Total Load=Dead load +Live Load=10.4+3=13.4KN/m
Factored load= 1.5 *13.4= 20.1 KN/m
- Landing
Dead load of slab= 0.305 *1.0*25= 7.625 KN/m
Live load on Slab = 3*1 = 3KN/m per m width of landing
Total Load = 10.625 KN/m
Factored load = 1.5 *10.625 =15.9375KN/m
Load diagram of the stair shall be as follows.
Design Moment
Reaction at supports, Ra=Rb=49.86KN
Bending moment at mid span, Mu =59.736KNm
Mulim= 0.138 Fckbd2 For Fy= 415
Maximum bending moment allowed for a singly reinforced section with Fe500 bars
Mulim=0. 133fck.b.d2= 417.1KNm>59.736KNm .
Hence section can be designed as singly reinforced.
Area of reinforcement
Mu= 0.87FyAst d (1-AstFy/bdFck)
59.736*106= 0.87*500*Ast*280(1- Ast*500/1000*280*40)
Calculating Ast from given equation we get Ast= 501mm2
Using 12φ bar, Aφ=113mm2
Spacing= 113*1000/501 =225.74mm
Hence provide 12 φ bars @ 200mm c/c
Distribution steel @0.12% = 0.12*1000*305/100=366mm2
Spacing of 10φ bars= 78.5*1000/366=214.48mm
Provide 10φ @ 200 mm c/c.
Design of Footing
Material and section property for design of foundation
| PROPERTY | VALUE |
| GRADE OF CONCRETE | M30 |
| GRADE OF STEEL | Fe500 |
| SAFE BEARING CAPACITY OF SOIL | 230 KN/m2 |
| DENSITY OF SOIL | 20 KN/m3 |
| DEPTH OF FOUNDATION | 1.5m BELOW GROUND LEVEL |
| CLEAR COVER | 50 mm |

Design of Footing131 as numbered in ETABS in Cad F2
Load coming from Column= Wc=1620.112 KN.
Size of Column = 700*1000 mm
Soil Bearing Capacity (SBC)= 230 KN/m2
Fck= 40 N/mm2.
Fy= 500N/mm2.
Load calculation
Axial service load = 1620.112KN
Self-weight of footing 10% of axial service load = 162.01 KN
Total = 1620.11 +162.01 =1782.12 KN
Area of footing
A = 1782.12/250 = 7.128 m2
Providing square footing of sides = [Latex] sqrt{7.128} [/Latex]= 2.7 m
Factored soil pressure due to column load only
Pu= 1.5 *1620.11/2.7*2.7=333.35KN/m2
Calculation of depth of footing.
Depth of footing is calculated on the following basis:
- Based on one-way shear criterion.
- Based on two-way criterion.
- Based on bending moment criterion.
Take maximum depth that is calculated from above three criteria .
1-Based on one way shear criterion;
Critical section shall be at a distance d from the face of the column .
Shear force due to factored soil pressure at critical section
=2.7*333.35[(2.7 -0.3)/2 -d]
=1080.054-900.045d …………………………………………….eq (1)
Assuming 0.2% steel {From Table 19 of IS 456 :2000}
Zc=0.33N/m2
Shear force resisted by the section = 0.34*106*2.7*d/103
= 941.4d ……………………eq (2)
Equate equation (1) and (2) we get
d=0.592m
2-Depth of footing by two way shear criterion;
Considering critical section is at d/2 from the face of column
Shear force at critical section = 333.35 *[2.7*2.7- (0.3 +d)*(0.45+d)]
=333.35(7.29-0.135-75d-d2) …………………………………..eq (3)
Max allowed shear stress = 0.25 =1581.1KN/m2
Shear force resisted =1581.1*d [2(0.45+d)+(0.3+d)] ……………eq(4)
Equate equation 3 and 4 we get d
D= 0.43 m
3- Based on the bending Moment criterion
Critical section is at face of column.
Bending moment at the critical section
Mux=333.35*106*2.7/8 *(2.7-0.45)2
Mux= 570.56KNm
Muy=333.35*106*2.7/8 *(2.7-0.3)2
=648.03KNm
By taking maximum moment.
d= [Latex] sqrt{648.03frac{10^6}{0.13340*2700}} [/Latex] =0.212m
The maximum value of d from all above criteria is 592mm.
Take d= 600 mm
D =600+75+16/2 =683mm say 690 mm
Area of reinforcement
Mu = 0.87FyAstd (1- AstFy/bdFck)
From the above equation, we calculate the Ast
Ast= 2487.64 mm2
Provide 16 mm bars , Aφ= 201 mm2
Spacing = 201*2700/2487.64=218mm
Provide 16 mm bars@ 200mm c/c in each direction
Check for development length
Ld=0.87*Fy*φ/4*Zbd {Table 26.2.1.1}
= 0.87*500*16/4*3.04= 572.37 mm
Available lengths of bars = (2.7-0.300)/2 *1000= 1200mm
Hence OK.
REFERENCES
- IS 456:2000, Plain and Reinforced Concrete – Code of Practice, 4th Revision, Bureau of Indian Standards, New Delhi.
- IS 1893:2016, Criteria for Earthquake Resistant Design of Structures: Part-1 General Provisions & Buildings, 6th Revision, Bureau of Indian Standards, New Delhi.
- IS 13920:2016, Ductile Design & Detailing of Reinforced Concrete Structures subjected To Seismic Forces – Code of Practice, 1st Revision, Bureau of Indian Standards, New Delhi.
- IS 875:1987 (Part-1), Code of Practice for Design Loads (Other Than Earthquake) For Buildings and Structures. Part-1 Dead Loads – Unit Weights of Building Materials & Stored Materials, 2nd Revision, Bureau of Indian Standards, New Delhi.
- IS 875:1987 (Part-2), Code of Practice for Design Loads (Other Than Earthquake) For Buildings and Structures. Part – 2 Imposed Loads, 2nd Revision, Bureau of Indian Standards, New Delhi.
- SP – 16:1980, Design Aids for Reinforced Concrete to IS 456, Bureau of Indian Standards, New Delhi.
- SP – 34:1987, Handbook on Concrete Reinforcement & Detailing, Bureau of Indian Standards, New Delhi.
- A.K. Jain, Reinforced Concrete – Limit State Design, Nem Chand & Bros, 7th Edition, 2016.
- V.L. Shah, S.R. Karve, Illustrated Design of Reinforced Concrete Buildings. Eight Edition, 2017.
- S.K. Jain, R.K. Ingle, Proposed Codal Provisions for Design and Detailing of Beam-Column Joints in Seismic Regions.
- Dr. Vinod Hosur, Earthquake Resistant Design of Building Structures, Wiley Publications.
- Pankaj Agarwal, Manish Shrikande, Earthquake Resistant Design of Structures.














3 comments